هنر توانایی و مهارت آفریدن زیبایی است
خدمات BIM معماری به کارفرما کمک می کند تا به راحتی از جزئیات پروژه مطلع گردد و نسبت به مشکلات آن به کمک مهندسین معمار تصمیم گیری کند. همچنین خدمات مدلسازی BIM معماری، هنر مهندسین معمار را قبل از ساخت به کارفرما نمایش می دهد. بنابراین امکان تعامل بیشتر طرفین را فراهم میشود. همچنین تمام عناصر معماری که در پروژه استفاده میشوند به صورت لیست مصالح در اختیار ذینفعان پروژه قرار میگیرد.
داشتن تصویر مشخصی از پروژه، دانستن مراحل اجرا، لیست دقیق مصالح و منابع مالی مورد نیاز برای هر بخش سرعت اجرای پروژه را بالا برده و از هزینه های دوباره کاری می کاهد. بنابراین استفاده از خدمات BIM معماری به سودآوری بیشتر پروژه کمک میکند.

LOD 100
مرحله 1
طراحی مفهومی

LOD 200
مرحله 2
طراحی شماتیک

LOD 300
مرحله 3
توسعه طراحی

LOD 350
مرحله 4
اسناد ساخت

LOD 400
مرحله 5
ساخت

LOD 500
مرحله 6
چون ساخت

تصاویر سه بعدی در انتقال تفکر مهندس معمار به کارفرمای پروژه بسیار موثر خواهد بود. همچنین صحت طراحی، زیبا بودن آن و مشکلات احتمالی در این بخش مورد بررسی قرار میگیرد.

یکی از خروجیهای بسیار مفید و پیشنیاز برآورد هزینه ، برآورد احجام پروژه میباشد. همچنین برنامه زمانبندی نیز براساس نتایج این بخش تهیه میشود. بنابراین سفارش مصالح در حین اجرا آسان میشود.

هر یک از المانهای به کار رفته در بخش معماری دارای یک شناسنامه اطلاعاتی است. بنابراین جزئیات مصالح، کارخانه سازنده، قیمت و اطلاعات بسیار دیگر در این شناسنامه اطلاعاتی ثبت شده است.

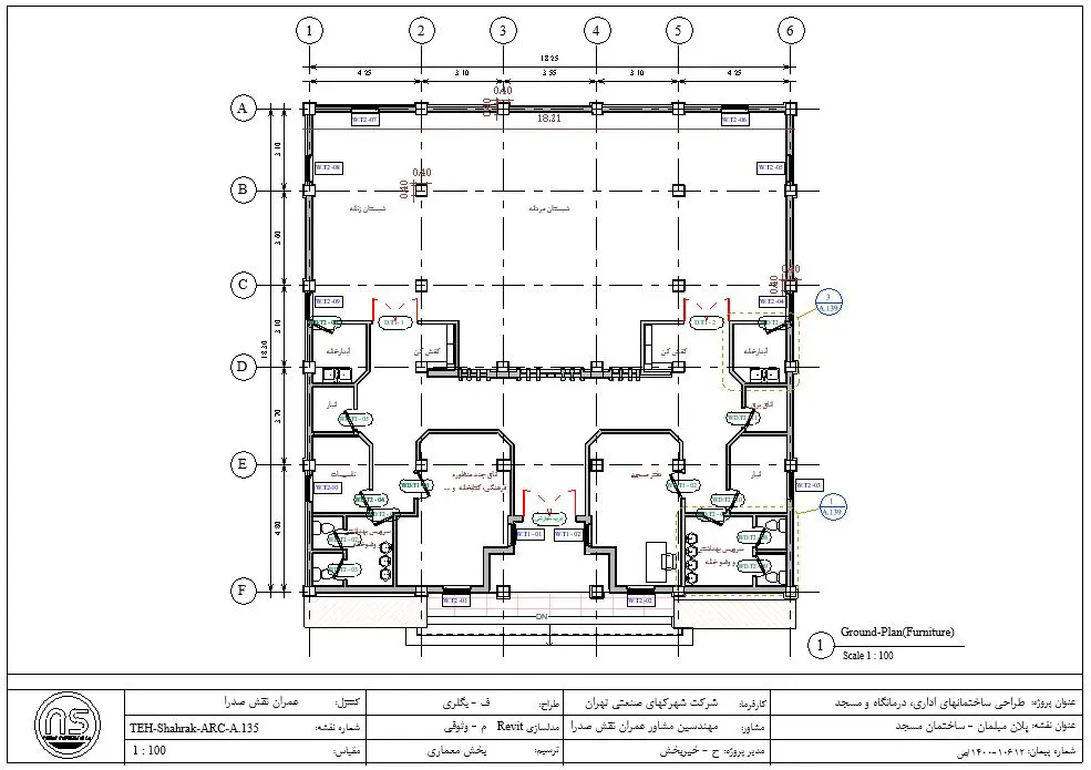
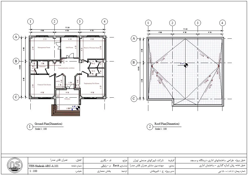
استفاده از خدمات BIM معماری باعث ایجاد نقشههای معماری هوشمند خواهد شد. بنابراین هر تغییری در پلانها به صورت اتوماتیک در مقاطع و نماها، برآورد احجام و بنامه زمانبندی اعمال میشود و درصد خطا نزدیک به صفر است.

طراحی محوطه و پیرامون پروژه نیز در خدمات مدل سازی BIM معماری منعکس میگردد. بنابراین دید کلیتری نسبت به پروژه ایجاد خواهد شد. همچنین فرصت کافی برای بهبود طراحی محوطه فراهم می گردد.
BS+PAS 1192:2007
1192-2:2013
1192-3:2014
1192-4:2014
1192-5:2015
1192-6:2018
8541-1:2012
8541-2:2011
8541-3:2012
8541-4:2012
8541-5:2015
8541-6:2015
19650-1:2018
19650-2:2018
19650-3:2020
19650-5:2020






اطلاعات هر یک از المانهای معماری بر روی آن ثبت میشود و به صورت طبقهبندی شده ارائه میگردد.
با استفاده از پلتفرمهایی مانند BIM Track امکان به اشتراک گذاری اطلاعات فراهم میگردد. بنابراین همه ذینفعان پروژه به صورت همزمان به آخرین اطلاعات دسترسی دارند.
مدلها در چهار بخش معماری، سازه، مکانیک و برق بر یکدیگر منطبق می گردند. بنابراین تداخلات احتمالی پیش از اجرا پیدا شده و بر طرف می گردد.
هزینه های ساخت پروژه کاملا شفاف می شود. بنابراین جریان نقدینگی لازم برای اجرای پروژه قابل محاسبه است. لذا پروژه با برنامهریزی مالی هیچگاه به دلیل کمبود منابع مالی متوقف نمیگردد.
با بهکارگیری BIM، پروژهتان را به یک مدل هماهنگ و دقیق تبدیل کنید؛
از کاهش هزینههای پیشبینی نشده تا اجرای دقیقتر و مدیریت بهتر پس از ساخت.